建筑平面圖的形成
Formation of Architectural Floor Plans
【Part 01.】
平面圖是地圖的一種,可以用水平面代替水準面,在這個前提下,可以把測區內的地面景物沿鉛垂線方向投影到平面上,按規定的符號和比例縮小而構成的相似圖形,稱為平面圖。

【STEP01】

【STEP02】

【STEP03】
建筑平面圖的有關規定
Regulations on Architectural Floor Plans
【Part 02.】
比例:1:50、1:100、1:150、1:200、1:300等
朝向:底層平面圖標指北針(其它層平面圖上不標朝向)
圖線:
? 粗實線——凡是被剖切的主要建筑構造,如承重墻、柱的斷面輪廓線,墻、柱斷面輪廓線不包括抹灰層的厚度,一般在1:100的平面圖中不畫抹灰層。
? 中粗線——被剖到的次要建筑構造和未剖到的構配件輪廓線,如窗臺、陽臺、臺階、樓梯、門的開啟方向和散水等。
? 細實線——尺寸線、尺寸界線、圖例線、索引符號、標高符號。
? 點畫線——中心線、對稱線、定位軸線。

定位軸線:
定位軸線是施工中墻身砌筑、柱梁澆筑、構件安裝等定位、放線的依據。
規定:主要承重構件,應繪制水平和豎向定位軸線,并編注軸線號;對非承重墻或次要承重構件,編寫附加定位軸線。
? 橫向定位軸線編號用阿拉伯數字,自左向右順序編寫;
? 縱向軸線編號用拉丁字母(除I、O、Z外),自下而上順序編寫,
? 對于樣圖上的軸線編號,若該樣圖同時適用多根定位軸線,則應同時注
明各有關軸線的編號,如下圖所示:

平面圖上定位軸線的編號,宜標注在圖樣的下方與左側。在兩軸線之間,有的需要用附加軸線表示,附加軸線用分數編號。
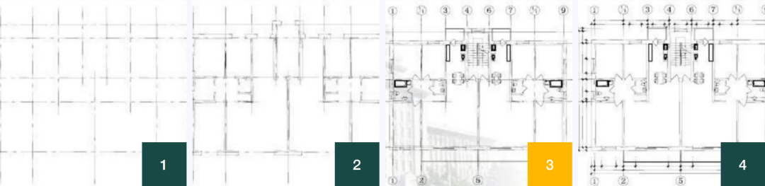
建筑平面圖的繪畫步驟
The Drawing Steps of Architectural Floor Plan
【Part 03.】

STEP-1:選取比例后,畫定位軸線
STEP-2:畫出墻柱并確定門窗洞的位置
STEP-3:畫出房屋的細部
STEP-4:加深并標注尺寸

常見元素參考
Common Element Reference
【Part 04.】
左右滑動查看更多
常見區域參考
Common Regional References
【Part 05.】
左右滑動查看更多
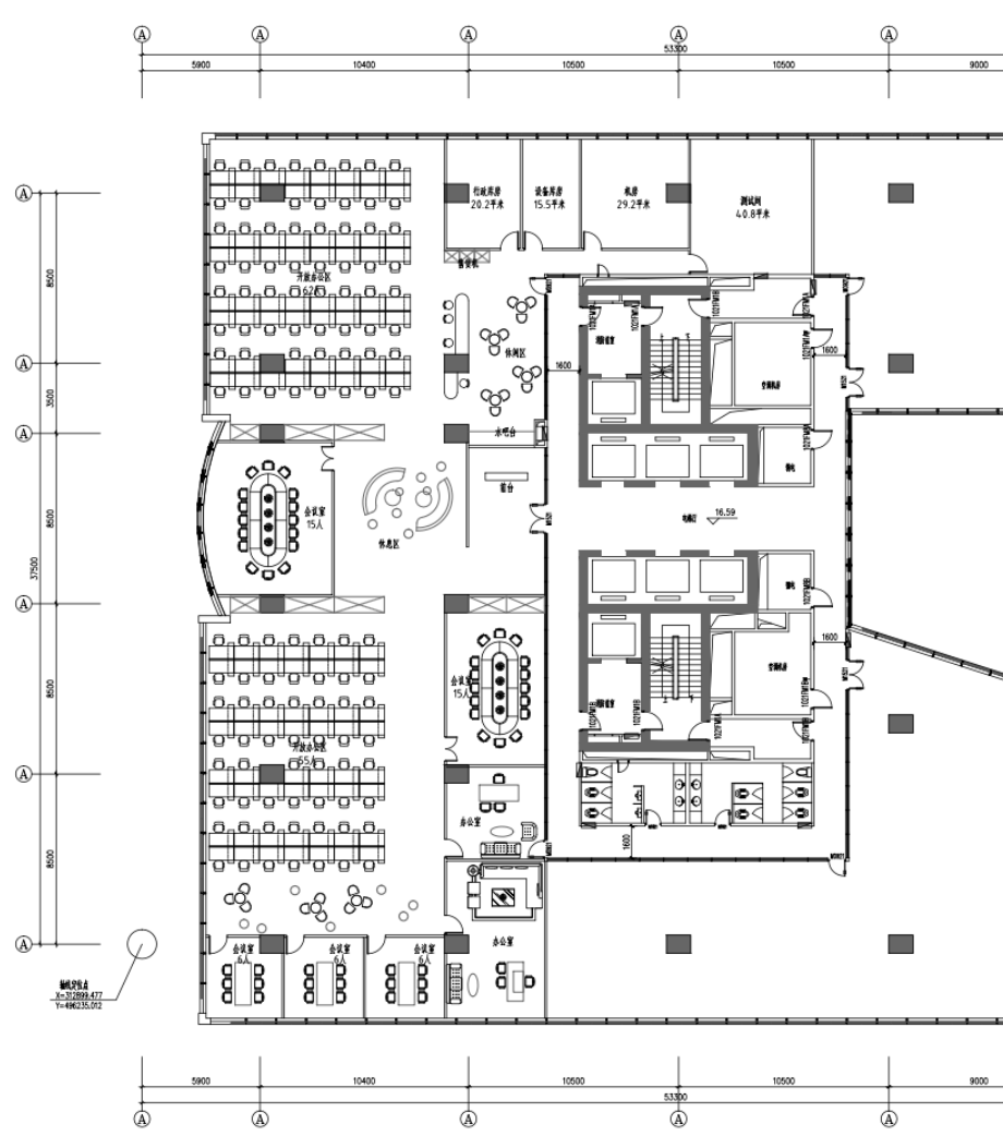
行業平面特點示例
Example of Industry Plane Characteristics
【Part 06.】
互聯網科技
開放性與靈活性:采用開放式辦公空間,減少固定隔斷,通過低隔斷或島式布局劃分專注區、共享工位區、協作區和休閑區,便于員工根據任務需求自由切換工作位置;空間設計注重動靜分區,設置專門的休息區、娛樂區和茶水間,營造輕松的社交氛圍,同時通過聲學解決方案(如隔音帷幕、白噪音系統)減少噪音干擾。
個性化與美學平衡:色彩搭配以中性色為主,營造通透感,同時加入活力橙、黃等色彩激發創造力,軟裝遵循“少而精”原則,提升空間美學格調。通過幾何造型、光影設計和品牌元素的融入,展現企業個性與文化內涵。
金融
功能分區明確:通常分為前臺接待區、辦公區、會議室、貴賓接待室、茶水間等功能區域,各區域布局合理,兼顧效率與隱私需求。
兼顧舒適與高效:設置休息區、健身區、母嬰室等配套設施,關注員工身心健康。辦公家具采用人體工學設計,提高工作效率。
專業服務
功能分區明確:前臺接待區:通常位于入口處,設計簡潔大方,兼具展示品牌形象與接待客戶的功能;等候區:與前臺相鄰,提供舒適的座椅和綠植,營造安靜、舒適的等待環境;開放式辦公區:采用低隔斷或開放式布局,促進員工之間的溝通與協作,同時配備充足的自然采光和綠植,提升工作舒適度;獨立辦公室:為合伙人設置,強調隱私性和專業性,通常位于空間深處或窗邊,便于接待客戶;會議室:根據規模和需求設置不同大小的會議室,配備智能設備和舒適的座椅,滿足會議、談判等需求;檔案室/資料庫:用于存放文件等資料,需具備良好的保密性和存儲條件。





















